新京の帝国ホテルとも呼ばれた満州中央銀行倶楽部(1935年)は、甲子園ホテルの計画をさらに発展させたものと考えられる緩やかな南下がりの敷地を生かした東西に長く一直線に伸び、西の角で短く南側に折れたL字形の平面の2階建ての建物であった。
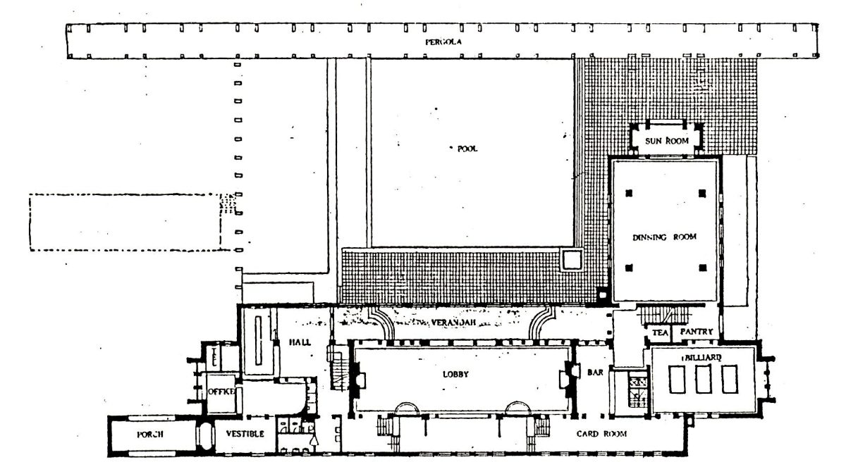
L字の短い部分は南側が食堂で、その北に撞球室(ビリヤード)、バーとカードルームが配置されている。 東西に長い直線部分には、北から南へ読書室、一段下がったところに社交室(ロビー)、さらに一段下がったところにベランダ(兼廊下)が配されている。ベランダの外はテラスで、大きな池がある。池の南には建物の幅より長いパーゴラが東西に設けられ、パーゴラの下にはベンチが設置された。その先は、運動場を通して公園へと視界が開けていた(1986年及び1988年に現地確認)。社交室にある一対の噴水とそれを受ける半円形の小さな池(水盤)には、乾いた大地に湧き出た水が、やがてテラスの大きな池に流れつくという暗示が込められている。 また、社交室と同じ床レベルの玄関ホールからベランダに下りる階段は水の流れをかたどっている。利用者を、静から動へ、高から低へと誘うように設計された倶楽部は、新京の社交場としての憧れの施設であったと聞く。
<僕は長城の一片を以て倶楽部にしようと考えた>
昭和8年(1933年)に、遠藤は「新京国際ホテル計画案」を携えて旧満州に渡った。
満州中央銀行倶楽部についての彼の文章「中銀倶楽部の構想―煉瓦に聴く―」は、「大陸」での設計に対する姿勢を述べている。
「日本を木の国として、木の本質と其処からの約束について考察した。 これを大陸に施してみようと云う。」そこで「大陸は土だ。」「土の建築、土の生活、土の文化。この土は我々の前に煉瓦 (石を含めて)として表われる。」という。「或るファンシイな形、然しそれは一体何だ。」と問いかけ「僕は一切のいわゆる倶楽部らしさを却けて只率直にこれを煉瓦に聴こうとしたのです。」すると「煉瓦は山になるという。そして煉瓦は長城になるという。そこで僕は長城の一片を以て倶楽部にしようと考えた。」と、構想について述べている。
そして、「結語」では、「大陸は素手や土足でノッソリ入って来る所ではないのです。 其所には相当な挨拶と相当な仁義が要る。」とし、自分が「建築家として大陸に対して一応の仁義を尽くそうとした意中の一端を語って居るのです。」と締めくくっている。
このほか遠藤は、満州中央銀行総裁公館、同副総裁公館、同理事邸、同課長・副課長宅、集合住宅のほか、個人住宅など多数の建築を手がけた。また、遠藤の一年志願兵時からの友人であり、大正期から満州に滞在した高橋源一郎の手記によれば、遠藤は同じ第二高等学校出身の坂谷、松木、皆川の住宅を設計したとされる。
そして、奉天(瀋陽)の北陵公園の五千坪の敷地に建設中であった北陵観光ホテルは「八割の建造を終え」ていたが終戦のため完成には至らなかった。「6ケ月を費やして出来上がった」設計は、「総坪延三千五百坪、客室数二百、外に大小宴会場等を具備し」た規模であった(藤田九一郎『在満五十年・奉天日本人の史』 〔第2部〕1983大湊書房、藤田は兵庫県出身の実業家)。北陵観光ホテルは竣工には至らなかったものの、遠藤の設計した戦前期最後の大規模建築であった。
因みに、佐賀県武雄市にある如蘭塾(1943年)(国登録有形文化財)は、藤田とともに奉天ビルホテル (瀋陽)の経営に携わった野中忠太が遠藤に設計を依頼したものである。
- (※)地名等については「旧名称(現名称)」とした 。
写真提供:株式会社 大林組様
出典:『工事画報 昭和十年版』昭和十年九月二十日発行
写真・図面・解説文 / 井上 祐一 氏















