ウィリー邸の設計された1933年は、活動が停滞していた「苦難の時代」から、代表作「落水荘」 (写真1)や一連の(※1) 「ユーソニアン・ハウス」(写真2)等が建てられる「第2黄金時代」への転換期にあたります。 この作品はかれの設計活動全体において大きな転機を示すものとして注目されます。
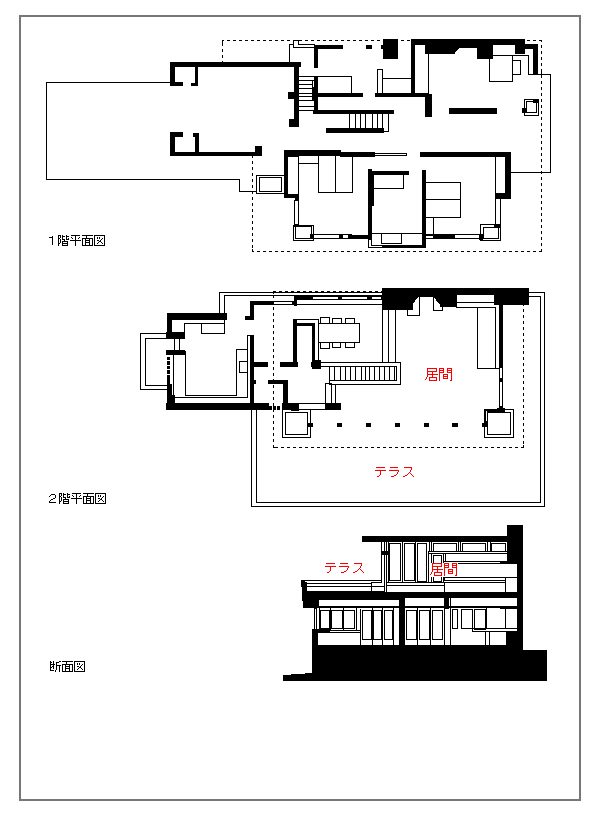
ウィリー邸には実施案(図1)とは異なる初期案(図2)が遺されています。実施案は平屋ですが、 初期案は2階建てでした。居間が上階にある配置はハートリー邸(写真3)・トメック邸(写真4)・ロビー邸(写真5) 等々の(※2)「プレイリー・ハウス」に散見されるものです。しかしおもしろいことに、そのような 「階段を上って上階に居間」という配置は「ユーソニアン・ハウス」において以後見られなくなるのです(註)。初期案から実施案への変容は、かれが「大地」への帰属を住宅成立の要件として自覚したことを指し示しています。 かれは1938年のライト特集号雑誌の中で次のように述べています。
『ウィリー邸は、どのような「近代的なもの」も採用することなく、内部と外部の見晴らしによって近代の空間の感覚を強調した住宅です。 シェルターの感覚の均衡のとれた翻訳(すなわち比例の感覚)はこの空間の感覚、物質の感覚、そして住まいの全体構造の目的とともにあるのです。』
ウィリー邸が「空間」を強調したものであることが述べられています。実は、かれが「空間」概念について自覚的に言及し始めるのは「苦難の時代」に入ってからで、プレイリー・ハウスの「第1黄金時代」にはなかったことでした。 ここで「空間の感覚」と言われているように、かれの「空間」概念とは容積として計測し得るような対象化された「もの」ではなく、 人間と物質のあいだのかかわり合いそのものが「生成」してくる動的事態その「こと」です。そのとき「空間の感覚」を生じさせる「空間としての建築」は屋根や壁や床ではなく、 「シェルター」「スクリーン」「グラウンド・フロア」というような、意味と形を結びつける「抽象的パターン」によって構成されます。 ユーソニアン・ハウスの簡潔な構成はまさにその表現に他なりません。そして「大地」は「空間」の根拠として、かれの言っている「全体構造の目的」にかかわるのです。 ユーソニアン・ハウスは「天地のあいだで物の傍らに住まうこと」の真の実現を志向していると言えるでしょう。
ウィリー邸における初期案から実施案への変容は、第1黄金時代のプレイリー・ハウスから、苦難の時代における空間概念の自覚と深化を契機として、 第2黄金時代のユーソニアン・ハウスへ至る、かれの建築思想の変容の現れに他ならないのです。
- (※1)ユーソニアン・ハウス:ライトの後期「第2黄金時代」(1935~1959)の住宅作品の総称。ネーミングの意味はライトが独自に提案する理想的民主主義社会「ユーソニア」に相応しく建つ住宅。
- (※2)プレイリー・ハウス:ライトの初期「第1黄金時代」(1894~1910)頃の住宅作品の総称。ネーミングの意味はアメリカ中西部に広がる大平原 「プレイリー」に相応しく建つ住宅。
- (註)ユーソニアン・ハウスでも、河川氾濫への対処を念頭に置いたロイド・ルイス邸(1939)は例外である。また敷地の形状によってテラスがキャンティレヴァーとなる場合には、当然その外縁に腰壁がつく。しかしその場合にも居間はエントランスと同レベルであって、プレイリー・ハウスのように居間が「階段」によっていわば地上から切り離されることはない。そして「大地に平行な面」であると言われるように、ユーソニアン・ハウスのキャンティレバーは「大地」との連続性において捉えられている。
写真・図面・解説文 / 水上 優 氏











